Dvojdům s podkrovím F+(5+kk (2x))
Projekt Dvojdomu s podkrovím F+ vznikl zrcadlovým spojením dvou Domů s podkrovím F . Rodinný dvojdům má celou řadu výhod. Umožňuje zachovat úzké vztahy mezi příbuznými nebo přáteli, kteří se rozhodli žít společně. Současně ale jasně vymezuje hranici mezi dvěma domovy a poskytuje tak větší soukromí. Díky společné zdi ušetříte čas a peníze nejen při nákupu pozemku a realizaci stavby. Úlevu pocítíte i v nákladech na energii.
Ke stažení: KATALOG STAVBY Dům s podkrovím F+
PLOCHA
| zastavěná plocha | 138,7 m2 |
| užitná plocha | 2 x 110,5 m2 |
| obytná plocha | 2 x 74,4 m2 |
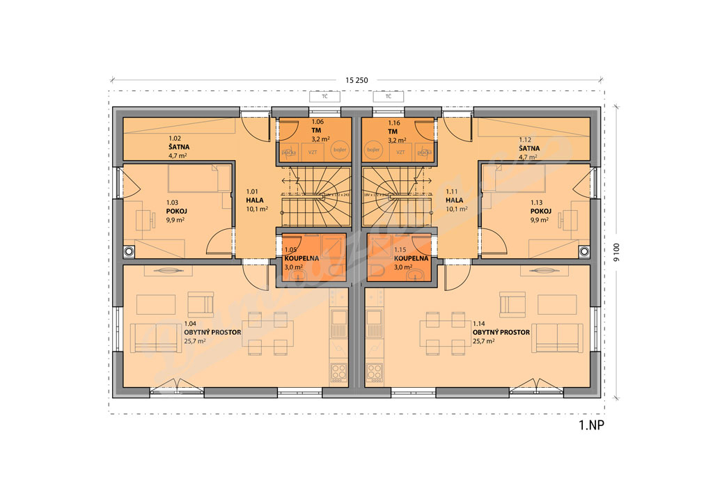
DISPOZICE DOMU
2x 5+KK
Přízemí – Hala, obytný prostor spojený s kuchyní s jídelnou a vstupem na terasu, pokoj, koupelna s toaletou, sklad, technická místnost
Patro – hala, 3 pokoje, koupelna, šatna
VSTUP NA ZAHRADU
francouzské okno
FASÁDA
kombinace standardní fasády a palubkového obkladu
STŘECHA
35 stupňů, sedlová s přesahy do boků domu
REALIZACE
Dvojdům – Stará Boleslav – 2014PROJEKT K DOMU ZDARMA
Vypracujeme projekt pro povolení stavby a pomůžeme vám se stavebním řízením.
| hrubá stavba | 4 254 800 Kč |
| stavba k dokončení | 7 350 700 Kč |
| stavba na klíč | 8 264 600 Kč |
Uvedené ceny jsou bez DPH. Nezahrnují základovou desku ani hydroizolaci a platí pro standardní provedení dřevostavby.
DOPRAVA DO 50 KM ZDARMA.KLIENTSKÉ ÚPRAVY
Přejete si jen trochu jinou střechu, okna nebo fasádu? Nabízíme i další varianty, pro které vám po dohodě vypracujeme přesnou individuální kalkulaci. Rádi přizpůsobíme náš projekt vašim představám nebo požadavkům místních předpisů. K domu přistavíme pergolu, garážové stání nebo terasu.
Podobné projekty z naší nabídky
KONTAKTUJTE NÁS
Zaujala vás tato dřevostavba?
Napište nám nezávaznou poptávku - rádi zodpovíme vaše dotazy.