Dům s podkrovím D+(6+kk)
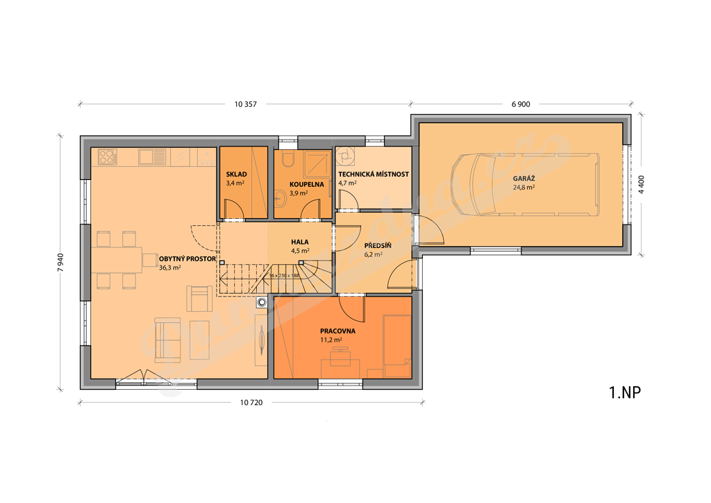
Jediná věc, která ještě chyběla projektu Dům s podkrovím D k naprosté dokonalosti, byla garáž. A tak jsme ji k němu přidali. Na jejích téměř 25 metrů čtverečních se krásně vejde jeden automobil. Plynule navazuje na dům, takže z auta se suchou nohou dostanete přímo do haly. Nicméně pokud vám toto umístění nevyhovuje, můžeme ji přesunout na jakoukoli jinou stranu domu. Díky tomu dokážeme stavbu přizpůsobit požadavkům právě vašeho pozemku.
Ke stažení: KATALOG STAVBY Dům s podkrovím D s garáží
PLOCHA
| zastavěná plocha | 114,7 m2 |
| užitná plocha | 162,1 m2 |
| obytná plocha | 103,1 m2 |
DISPOZICE DOMU
6+KK
Přízemí – Vstupní hala, obytný prostor s kuchyní a se vstupem na terasu, pokoj, koupelna, sklad, technická místnost, garáž
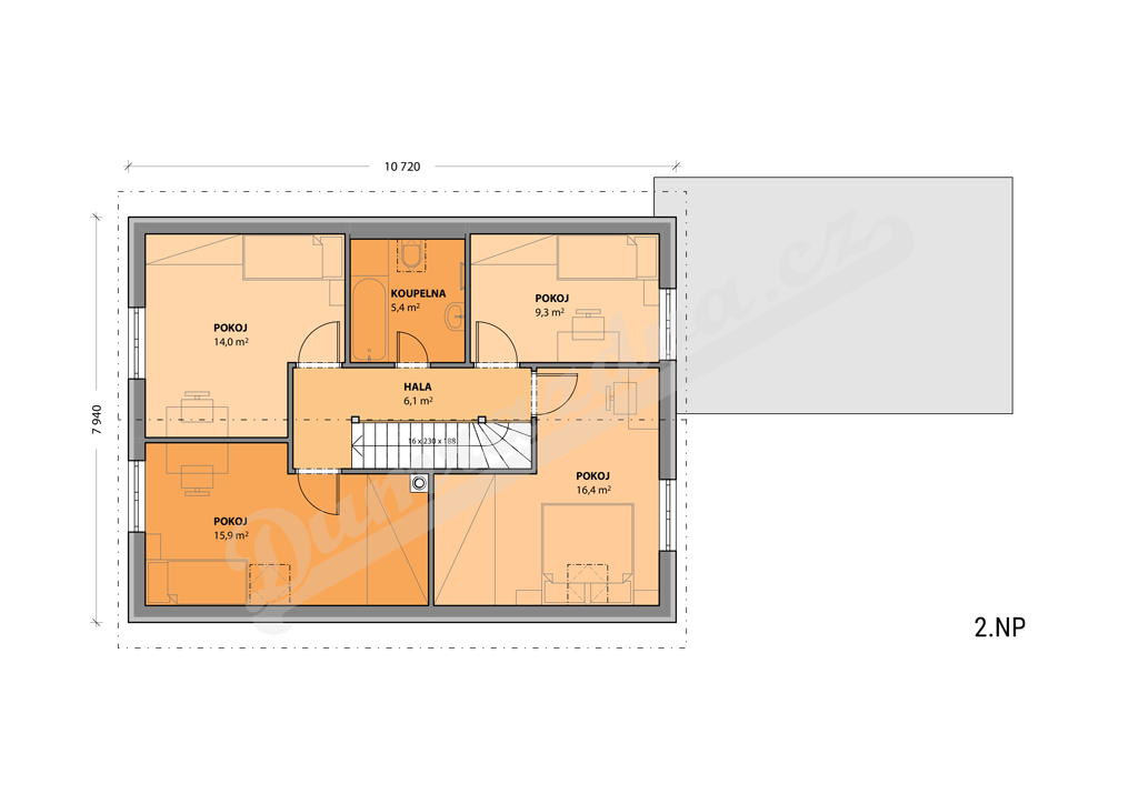
Patro – Hala, 4 pokoje, koupelna
VSTUP NA ZAHRADU
francouzské okno
FASÁDA
kombinace standardní fasády a palubkového obkladu
STŘECHA
35 stupňů, sedlová s přesahy do boků domu
PROJEKT K DOMU ZDARMA
Vypracujeme projekt pro povolení stavby a pomůžeme vám se stavebním řízením.
| hrubá stavba | 2 846 000 Kč |
| stavba k dokončení | 4 803 700 Kč |
| stavba na klíč | 5 455 300 Kč |
Uvedené ceny jsou bez DPH. Nezahrnují základovou desku ani hydroizolaci a platí pro standardní provedení dřevostavby.
DOPRAVA DO 50 KM ZDARMA.KLIENTSKÉ ÚPRAVY
Přejete si jen trochu jinou střechu, okna nebo fasádu? Nabízíme i další varianty, pro které vám po dohodě vypracujeme přesnou individuální kalkulaci. Rádi přizpůsobíme náš projekt vašim představám nebo požadavkům místních předpisů. K domu přistavíme pergolu, garážové stání nebo terasu.
Podobné projekty z naší nabídky
KONTAKTUJTE NÁS
Zaujala vás tato dřevostavba?
Napište nám nezávaznou poptávku - rádi zodpovíme vaše dotazy.