Free cookie consent management tool by TermsFeed

Nízkoenergetická dřevostavba Dům s podkrovím A+ (4+kk)

Dům s podkrovím A+(4+kk)DůmRazDva.cz

cena od 2 110 500 Kč

Je úžasné, jaký rozdíl vykouzlí pár metrů navíc. Oblíbený projekt  Dům s podkrovím A jsme zvětšili o 8 metrů čtverečních a rázem přibylo místo pro spíž a koupelnu v přízemí a pro šatnu v patře. Navíc se zvýšila i plocha obytné místnosti, a tedy narostl prostor, na němž se odehrává každodenní rodinný život. Přitom jde stále o malý rodinný domek, který se snadno uklízí, je energeticky nenáročný a vejde se na malý pozemek.

PLOCHA

zastavěná plocha 63,3 m2
užitná plocha 90,4 m2
obytná plocha 64,4 m2

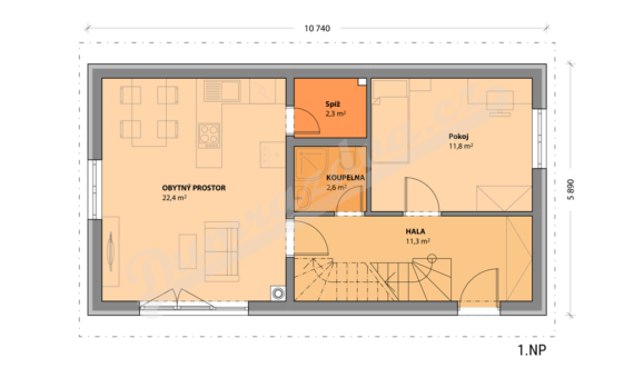
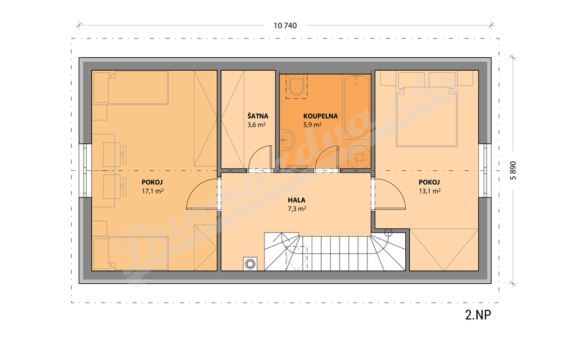
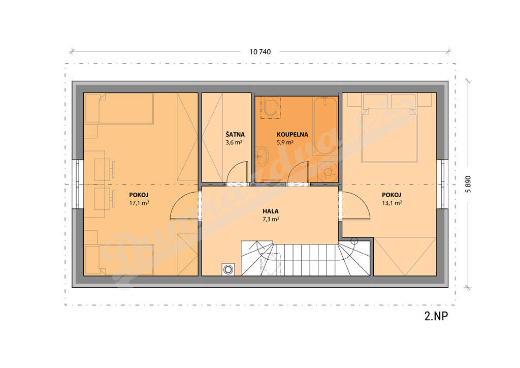
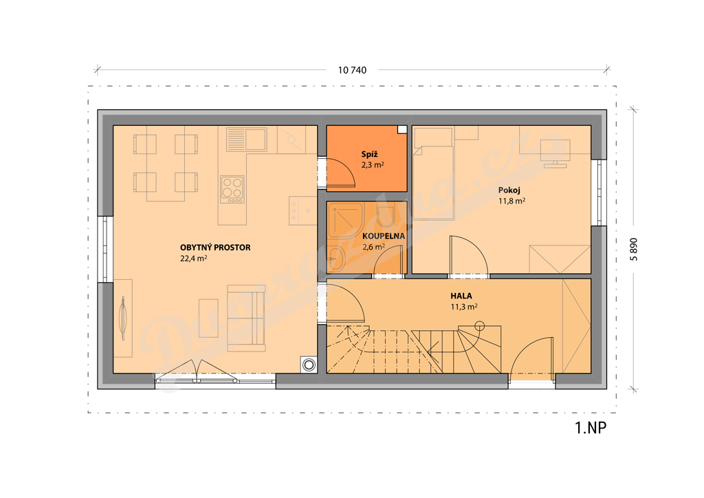
DISPOZICE DOMU

4+KK
Přízemí – Vstupní hala, obytný prostor s kuchyní a se vstupem na terasu, pokoj, technická místnost s toaletou, sklad
Patro – Hala, 2 pokoje, koupelna

VSTUP NA ZAHRADU

francouzské okno

FASÁDA

kombinace standardní fasády a palubkového obkladu

STŘECHA

35 stupňů, sedlová s přesahy do boků domu

PROJEKT K DOMU ZDARMA

Vypracujeme projekt pro povolení stavby a pomůžeme vám se stavebním řízením.

hrubá stavba 2 110 500 Kč
stavba k dokončení 3 744 900 Kč
stavba na klíč 4 104 600 Kč

Uvedené ceny jsou bez DPH. Nezahrnují základovou desku ani hydroizolaci a platí pro standardní provedení dřevostavby.

DOPRAVA DO 50 KM ZDARMA.

KLIENTSKÉ ÚPRAVY

Přejete si jen trochu jinou střechu, okna nebo fasádu? Nabízíme i další varianty, pro které vám po dohodě vypracujeme přesnou individuální kalkulaci. Rádi přizpůsobíme náš projekt vašim představám nebo požadavkům místních předpisů. K domu přistavíme pergolu, garážové stání nebo terasu.

KONTAKTUJTE NÁS

Zaujala vás tato dřevostavba?
Napište nám nezávaznou poptávku - rádi zodpovíme vaše dotazy.

zpět


Facebook.com Pinteres instagram
Upravit nastavení cookies