Bungalov L+(4+kk)
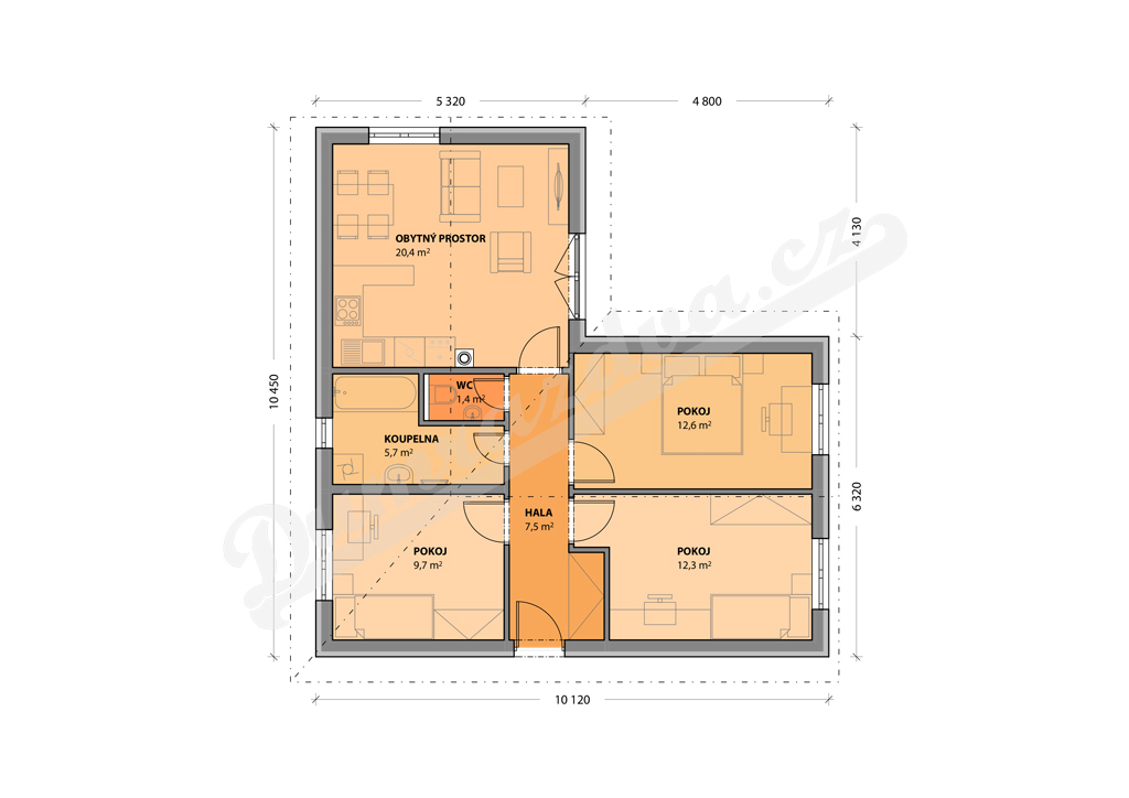
Tento rodinný dům vznikl zvětšením Bungalovu L o skoro 10 metrů čtverečních. Díky tomu jsme mohli ložnici z původního projektu rozdělit na dva samostatné pokoje a vytvořit tak komfortní bydlení i pro čtyřčlennou rodinu. Dům se hodí do nízké zástavby a vejde se na relativně malý pozemek. Půdorys ve tvaru písmene L vytváří příjemné zákoutí ideální pro venkovní posezení.
Ke stažení: KATALOG STAVBY Bungalov L+
PLOCHA
| zastavěná plocha | 86,1 m2 |
| užitná plocha | 69,6 m2 |
| obytná plocha | 55 m2 |
DISPOZICE DOMU
4+KK
Hala, obytný prostor s kuchyní a vstupem na terasu, 3 pokoje, koupelna, WC
VSTUP NA ZAHRADU
francouzské okno
FASÁDA
kombinace standardní fasády a palubkového obkladu
STŘECHA
20 stupňů, sedlová s přesahy do boků domu
PROJEKT K DOMU ZDARMA
Vypracujeme projekt pro povolení stavby a pomůžeme vám se stavebním řízením.
| hrubá stavba | 1 668 500 Kč |
| stavba k dokončení | 2 895 600 Kč |
| stavba na klíč | 3 123 100 Kč |
Uvedené ceny jsou bez DPH. Nezahrnují základovou desku ani hydroizolaci a platí pro standardní provedení dřevostavby.
DOPRAVA DO 50 KM ZDARMA.KLIENTSKÉ ÚPRAVY
Přejete si jen trochu jinou střechu, okna nebo fasádu? Nabízíme i další varianty, pro které vám po dohodě vypracujeme přesnou individuální kalkulaci. Rádi přizpůsobíme náš projekt vašim představám nebo požadavkům místních předpisů. K domu přistavíme pergolu, garážové stání nebo terasu.
Podobné projekty z naší nabídky
KONTAKTUJTE NÁS
Zaujala vás tato dřevostavba?
Napište nám nezávaznou poptávku - rádi zodpovíme vaše dotazy.