Free cookie consent management tool by TermsFeed

Nízkoenergetická dřevostavba Bungalov 5+ (5+kk)

Bungalov 5+(5+kk)DůmRazDva.cz

cena od 2 051 900 Kč

Tento pohodlný rodinný dům vychází z Bungalovu 5. Prodloužením původního projektu vzniklo místo pro další ložnici. Dřevostavba je díky tomu vhodná jak pro rodiny s několika dětmi, tak i pro soužití více generací. Obytný prostor prosvětlují dvě klasická a jedno francouzské okno. Světlo tak velkou část dne snadno proniká až do haly, ale dům si přitom zachovává milý venkovský charakter.

PLOCHA

zastavěná plocha 119,4 m2
užitná plocha 100,3 m2
obytná plocha 72,2 m2

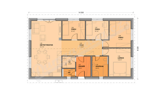
DISPOZICE DOMU

5+KK
Zádveří, velká hala, obytný prostor spojený s velkou kuchyní s jídelnou a vstupem na terasu, koupelna, WC, tři pokoje, ložnice, technická místnost

PROJEKT K DOMU ZDARMA

Vypracujeme projekt pro povolení stavby a pomůžeme vám se stavebním řízením.

hrubá stavba 2 051 900 Kč
stavba k dokončení 3 378 600 Kč
stavba na klíč 3 586 000 Kč

Uvedené ceny jsou bez DPH. Nezahrnují základovou desku ani hydroizolaci a platí pro standardní provedení dřevostavby.

DOPRAVA DO 50 KM ZDARMA.

KLIENTSKÉ ÚPRAVY

Přejete si jen trochu jinou střechu, okna nebo fasádu? Nabízíme i další varianty, pro které vám po dohodě vypracujeme přesnou individuální kalkulaci. Rádi přizpůsobíme náš projekt vašim představám nebo požadavkům místních předpisů. K domu přistavíme pergolu, garážové stání nebo terasu.

KONTAKTUJTE NÁS

Zaujala vás tato dřevostavba?
Napište nám nezávaznou poptávku - rádi zodpovíme vaše dotazy.

zpět


Facebook.com Pinteres instagram
Upravit nastavení cookies