Free cookie consent management tool by TermsFeed

Nízkoenergetická dřevostavba Bungalov 2 (3+kk)

Bungalov 2(3+kk)DůmRazDva.cz

cena od 1 358 500 Kč

K radosti někdy stačí málo – například Bungalov 2. Je ideální pro všechny, kdo hledají malý ostrůvek soukromí třeba i uprostřed města. Domeček se sedlovou střechou je nejen útulný, ale také dost prostorný na to, aby v něm pohodlně mohla žít tříčlenná rodina. Ložnice nesdílejí společnou stěnu, takže obyvatelé domu mají ještě o něco víc soukromí, než v projektu Bungalov 1.

PLOCHA

zastavěná plocha 67,5 m2
užitná plocha 54,4 m2
obytná plocha 39,6 m2

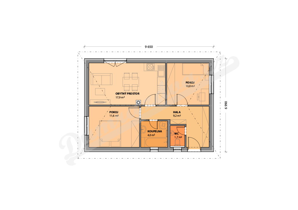
DISPOZICE DOMU

3+KK
Centrální hala, obytný prostor spojený s kuchyní a se vstupem na terasu, 2 pokoje, koupelna, WC

VSTUP NA ZAHRADU

francouzské okno

FASÁDA

kombinace standardní fasády a palubkového obkladu

STŘECHA

kombinace standardní fasády a palubkového obkladu

PROJEKT K DOMU ZDARMA

Vypracujeme projekt pro povolení stavby a pomůžeme vám se stavebním řízením.

hrubá stavba 1 358 500 Kč
stavba k dokončení 2 388 500 Kč
stavba na klíč 2 571 000 Kč

Uvedené ceny jsou bez DPH. Nezahrnují základovou desku ani hydroizolaci a platí pro standardní provedení dřevostavby.

DOPRAVA DO 50 KM ZDARMA.

KLIENTSKÉ ÚPRAVY

Přejete si jen trochu jinou střechu, okna nebo fasádu? Nabízíme i další varianty, pro které vám po dohodě vypracujeme přesnou individuální kalkulaci. Rádi přizpůsobíme náš projekt vašim představám nebo požadavkům místních předpisů. K domu přistavíme pergolu, garážové stání nebo terasu.

KONTAKTUJTE NÁS

Zaujala vás tato dřevostavba?
Napište nám nezávaznou poptávku - rádi zodpovíme vaše dotazy.

zpět


Facebook.com Pinteres instagram
Upravit nastavení cookies